Paris – 15ème / 50 m2
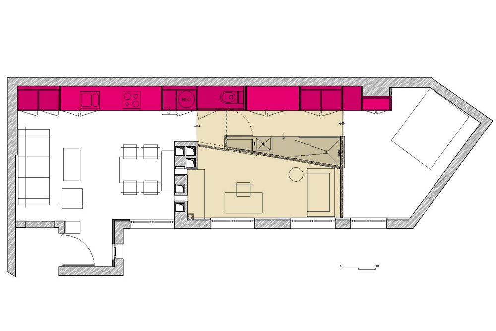
Dans cet appartement tout en longueur, les clients avaient une entrée lugubre, un couloir de 6 mètres et une seule chambre.
Il a été totalement repensé pour éliminer le couloir et créer une petite chambre supplémentaire.
Pour ce faire, toutes les pièces on été reliées par un linéaire de placards regroupant cuisine, WC, buanderie, penderie.
La cuisine, complètement ouverte sur l’espace salon – salle à manger, profite d’un beau plan de travail. Le haut de la crédence en inox a été pensé en miroir pour agrandir l’espace et apporter la lumière de la mono-exposition de l’appartement.
La grande particularité de cet appartement est qu’on passe par la salle de bain pour accéder à la chambre principale. Cela permettait d’éliminer le couloir. Dans cette salle de bain on trouve d’un côté la douche et la vasque et de l’autre les WC et la buanderie caché dans le grand rangement.
Ceci a été rendu possible par la création d’une marche afin de permettre les évacuations des eaux.
Dans le salon, les espaces d’anciens conduits de cheminées non utilisés ont été ouverts pour créer un lien avec la petite chambre-bureau.
Le mur et le plan vasque de la salle de bain ont été entièrement carrelés en émaux de briare gris. Tous les placards et étagères ont été dessinés sur mesure car la salle de bain vient se positionner le long d’un mur en biais.
La porte qui vient fermer la salle de bain vient se ranger de manière à cacher les étagères ouvertes. Ces étagères ont été conçues avec une face en miroir.
De l’autre côté, l’espace de la douche à l’italienne est très confortable et est protégé par un vitrage transparent toute hauteur.
On voit ici en plan le rangement qui va de la cuisine à la chambre sur toute la longueur de l’appartement.
On voit aussi le mur en biais qui a été créé afin d’apporter un espace suffisant à la salle de bain et à la petite chambre supplémentaire.
Crédit photos: > Paul Allain








